Villa with 4 bedrooms and 6 bathrooms with an area of 434 sq.m. and a plot of 772 sq.m...






Villa with 4 bedrooms and 5 bathrooms with an area of 434 sq.m. and a plot of 720 sq.m. in the Botanica Forestique complex in Layan district.
Description
Property characteristics:
- Complex of luxury villas with a swimming pool near the Lagoon and Layan Beach.
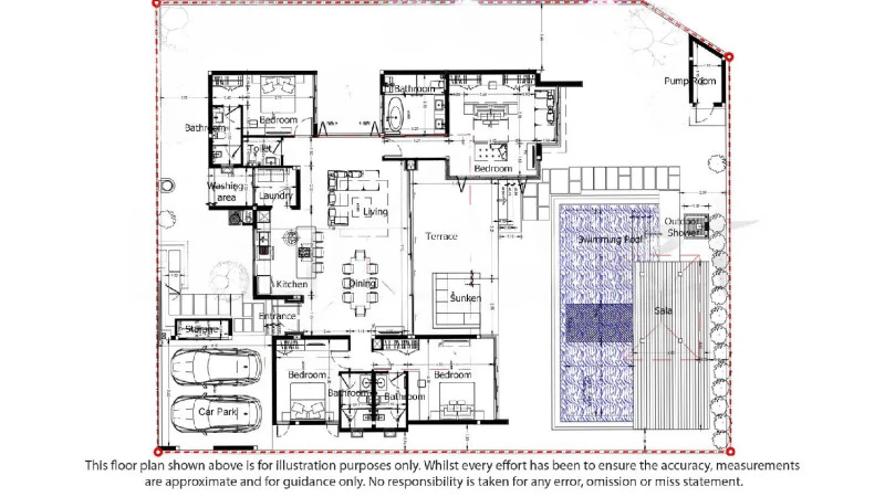
- 4-Bedroom Layout
- Master Bathroom with Separate Bathtub and Shower
- Open Plan Living and Dining Area
- Fully equipped kitchen with island/breakfast bar
- Private swimming pool (10.80 m or 13 m long)
- Open Living Rooms
- Gardens
- Pantry
- Garage
Project description:
- Management company
- 24-hour security
Description:
Another phase of modern villas with pool from a successful developer who has developed over 14 villa projects in Phuket. Botanica Forestique consists of 27 stylish tropical villas with pool in a very popular residential area close to the Laguna complex and the sandy Layan Beach. .
This single level villa features a large swimming pool, walk-in closet, modern kitchen, private pool and spacious open plan living and dining area.
Plot sizes start from 656 sqm. up to 1030 sq.m., while the construction area varies from 424 sq.m. up to 567 sq.m.. A large private swimming pool with a length of 10.8 m or 13 m is surrounded by beautiful green lawns, and a spacious pavilion with comfortable sun loungers.
Location:
Layout

Location
Get a consultation
Our experts will answer all your questions and help you with any real estate transactions in Phuket!





















































