Вилла с 3 спальнями и 3 ванными комнатами площадью 200 кв.м. и участком 264 кв.м...














Вилла с 2 спальнями и 2 ванными комнатами и участком 200 кв.м. в комплексе The Greens Phuket Villas в районе Раваи - Най Харн.
Описание
Характеристики объекта:
- Развитие современных вилл с бассейном на Раваи
- Недорогие одноэтажные виллы
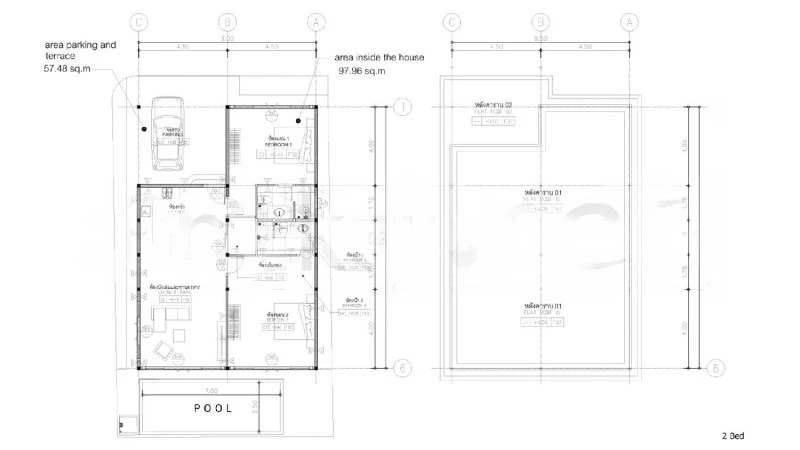
- План этажа с 2 спальнями и 2 ванными комнатами
- Гостиная и обеденная зона открытой планировки
- Полностью оборудованная западная кухня
- Частный бассейн (21 кв.м)
- Терраса у бассейна
- Крытая парковка на 1 машину
В комплексе:
- Управление недвижимостью и арендой на месте
- Видеонаблюдение
- 24-часовая охрана
Описание:
Эта вторая фаза строительства вилл с бассейном Greens Phuket Phuket расположена в тихом районе, недалеко от необходимой инфраструктуры и достопримечательностей Чалонга, Раваи и Най Харна.
Комплекс будет состоять в общей сложности из 19 вилл с бассейном, и в настоящее время доступны только квартиры с 2 спальнями, которые имеют большой частный бассейн.
Эти одноэтажные современные виллы состоят из 2 комфортабельных спален (главная с ванной комнатой), светлой гостиной и столовой открытой планировки и кухни в европейском стиле.
Большие раздвижные стеклянные двери ведут на просторную террасу у бассейна, которая идеально подходит для принятия солнечных ванн или отдыха у бассейна.
Местоположение:
Планировка

Расположение
Получить консультацию
Наши эксперты ответят на все вопросы и помогут провести любые сделки с недвижимостью на Пхукете!











































































































